ようこそ ゲスト 様

堺市中区深井北町 中古一戸建て(3LDK)


堺市中区深井北町 中古一戸建て

お問い合わせ番号:f00171-83486r
不動産/中古一戸建て
堺市中区深井北町 中古一戸建て
堺市中区深井北町
泉北線 深井 ( 徒歩 21分 )
阪和線 上野芝 ( 徒歩 26分 )
価格 2380.00万円
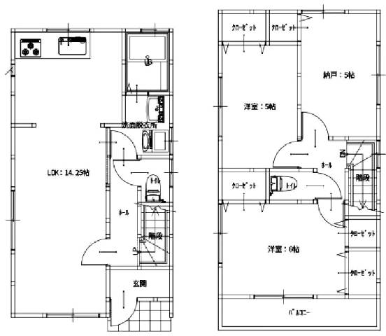
間取り 3LDK
2F / 洋 / 6畳×1室2F / 洋 / 5畳×2室
●2015年5月建築の築浅物件♪
●駐車2台可能です!
●空家ですのでお気軽にご見学して頂けます♪
建物/専有面積 72.09m2
(21.81坪)
土地面積 70.03m2
(21.18坪)
築年月 2015年5月
(平成27年5月)
駐車場 有/2台 地上階数 2階 地下階数 -
構造 木造
接道状況 私道 西 4.00m 
接面6m
用途地域 第一種住居地域
都市計画 市街化区域
地目 宅地
私道 15.00㎡ / 私道負担有無:有
建ぺい率 60%
容積率 160%
国土法 不要
計測方式 公簿
土地権利 所有権
不動産の現況 空家
入居/引渡 即時 
取引 仲介
■学校区:
深井西小学校
深井中央中学校
■設備:

住宅ローンシミュレーション

ローンシミュレーション条件
頭金 万  
ボーナス払い
(年2回)
万  
借入利率 %  
借入年数 年  
ローンシミュレーション結果
借り入れ金額 21,800,000
月々の返済額
(ボーナス月以外の年10回)
45,667/月
ボーナス月の返済額
(年2回)
145,667/月
年間の返済額 748,004
総支払額
(頭金含む)
28,180,140
  • ※元利均等返済方式でシミュレーションしています。
  • ※実際のご返済額はその他の条件により計算結果と異なりますので、予めご了承ください。
  • ※シミュレーション結果はご返済の目安としてご利用ください。また、将来のお借り入れを約束するものではありません。

堺市中区深井北町 中古一戸建て 周辺地図

堺市中区深井北町 中古一戸建て のことならお気軽にご相談ください。
株式会社ララホーム
TEL:0120-072-275
営業時間:9:00~20:00
定休日 :水曜日(祝日の場合は営業いたしております)
メールでのお問い合わせ

お電話の場合は物件番号 < f00171-83486r > を伝えていただくとスムーズにお応えできます。

  • 無料会員登録
  • ログイン
  • スタッフ
  • Q&A
  • 売却
  • 会社案内
お知らせ
  • 2025.10.31
    堺市で新築一戸建てをお探しなら、ララホームでまるごと物件検索!
    エムズコートシリーズ新築分譲物件はコチラ

    堺市の新築一戸建て新着物件はコチラ
    気になる物件がございましたら、いつでもご案内させて頂きます!お気軽にお問合せ下さいませ(^^)/
  • 2025.9.12
    堺市で不動産をお探しなら、ララホームでまるごと検索!お値打ち!値下げ物件が続々登場!
    新築一戸建て値下げ物件
    中古一戸建て値下げ物件
    中古マンション値下げ物件
    気になる物件がございましたら、お気軽にお問合せ下さいませ(^O^)/見てみるだけ~、大歓迎です♪喜んで、ご案内させて頂きます!
  • 2025.8.23
    地震の揺れを吸収する 住友ゴム工業(株)の制震ユニット『ミライエ』を標準装備♪
    エムズコートシリーズは『耐震』+『制震』の安心構造です!

    『MIRAIE』ミライエって何??

    エムズコートシリーズ新築一戸建分譲はこちら

    エムズコートシリーズの標準設備仕様・安心構造!
    モデルハウスにてハイグレードな標準設備をご覧頂けます!お気軽にご見学下さいませ(^O^)/
  • 2025.8.9
    堺市で新築一戸建てをご検討のお客様!ご購入者様からの嬉しいコメントを沢山頂戴しておりますので、お客様の声!・お客様のご感想!に掲載させて頂いておりますお客様の声はこちらをクリック
    ●まだ買うかもわからない!初めて物件を見るんだけど!とりあえず見てみるだけ~!全然大丈夫です!しつこい押売り営業は致しません!お気軽にお問合せ下さいませ(^^)/
  • 2025.6.16
    エムズコートシリーズ新築一戸建てのお値打ち! 値下げ物件がでました!
    >エムズコート値下げ物件
    見てみるだけ~、大歓迎です♪すぐにご案内させて頂けます!現地でのお待合わせや、ご自宅・最寄り駅までお迎えも可能です!お気軽にお問合せください(^^)/
  • 2025.1.10
    堺市で新築一戸建てをお探しなら、ララホームでまるごと物件検索!エムズコートシリーズ新築一戸建てのYouTube動画をアップしました!
    ララホームYouTubeちゃんねる

    ●実際に各物件をご見学して頂けます!すぐにご案内させて頂けますので、お気軽にお問合せ下さいませ(^^)/
  • 2024.12.26
    南海高野線 狭山駅徒歩約4分の場所に全3区画の新築一戸建て分譲がでました!
    敷地約45坪~49坪!

    エムズコート狭山
    ●お早い段階ですと、間取り変更や設備の色・外壁の色等も決めて頂けます♪
    モデルハウスにてハイグレードな標準設備仕様をご案内させて頂けますので、お気軽にご見学して下さいませ!お問合せお待ちしております(^^)/
  • 2024.7.30
    南海高野線 金剛駅エリアに全29区画のビッグタウンが誕生します!
    エムズコート金剛(大阪狭山市茱萸木)
    ●お早い段階ですと、間取り変更や設備の色・外壁の色等も決めて頂けます♪
    モデルハウスにてハイグレードな標準設備仕様をご覧頂けますので、お気軽にお問合せ下さいませ!
  • 2024.7.23
    堺市中区深井エリアに全17区画の新築一戸建て分譲が登場!
    エムズコート深井(東山)
    ●お早い段階ですと、間取り変更や設備の色・外壁の色等も決めて頂けます♪
    モデルハウスにてハイグレードな標準設備仕様をご案内させて頂けますので、お気軽にご見学して下さいませ!お問合せお待ちしております(^^)/
  • 2023.7.14
    堺市上野芝エリアに新規2現場登場!
    堺市堺区南陵町2丁
    ●全4区画 上野芝駅徒歩約10分♪

    堺市西区上野芝向ヶ丘町5丁
    ●全3区画 上野芝駅徒歩約10分♪
    モデルハウスにてハイグレードな標準設備仕様をご覧頂けますので、お気軽にお問合せ下さいませ!
  • 2022.11.11
    堺市で不動産をお探しなら、ララホームでまるごと物件検索!
    新築一戸建ての新着物件はコチラ
    中古一戸建ての新着物件はコチラ
    中古マンションの新着物件はコチラ
    売土地の新着物件はコチラ
    こだわりの条件にチェックをして、物件の絞り込みも簡単にできます♪気になる物件がございましたら、随時ご案内もさせて頂きます!お気軽にお問合せ下さいませ(^^)/
  • 2022.7.24
    堺市の不動産情報まるごと検索!
    新築一戸建ての新着物件はコチラ
    こだわりの条件にチェックをして、物件の絞り込みも簡単にできます♪気になる物件がございましたら、お気軽にお問合せ下さいませ!ご案内もさせて頂きます(^^)宜しくお願い致します!
  • 2022.1.23
    堺市で不動産をお探しなら、ララホームでまるごと物件検索!
    会員登録頂くと、非掲載物件もご覧頂けます。登録は簡単!お探し条件を指定して、絞り込み検索してみて下さい(^^)
    プレミアム会員登録はこちら
    気になる物件がございましたら、お気軽にお問合せ下さいませ!随時ご案内もさせて頂きます。見てみるだけ~!でも大歓迎です。お問合せお待ちしておりま~す(^O^)/