ようこそ ゲスト 様
ログイン
[無料]会員登録
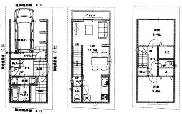
堺市北区金岡町 新築一戸建て(2LDK)
0120-072-275
お気軽にお問合せください。
トップページ
物件を探す
売りたい方
Q&A
スタッフ紹介
会社の紹介
お問い合せ
堺市北区金岡町 新築一戸建て
HOME
>
不動産
>
堺市北区
>
金岡町
>
堺市北区金岡町 新築一戸建て
>
2750.
00
万 / 2LDK
お問い合わせ番号:f00171-84544r
スマートフォン用QRコード
(クリックで拡大)
不動産/新築一戸建て
堺市北区金岡町 新築一戸建て
堺市北区金岡町
南海高野線 白鷺
( 徒歩 6分 )
大阪メトロ御堂筋線 なかもず
( 徒歩 20分 )
南海高野線 中百舌鳥
( 徒歩 23分 )
価格
2750.
00
万円
間取り
2LDK
●白鷺駅へ徒歩約6分♪地下鉄なかもず駅へも徒歩約20分♪
建物/専有面積
70.18m
2
(21.23坪)
土地面積
43.05m
2
(13.02坪)
築年月
2026年8月
(令和8年8月)
駐車場
有/1台
地上階数
2階
地下階数
-
構造
木造
接道状況
私道 北東 4.70m
接面4m
用途地域
第一種中高層住居専用地域
都市計画
市街化区域
地目
宅地
私道
280.00㎡ / 私道負担有無:有
建ぺい率
60%
容積率
200%
計測方式
公簿
土地権利
所有権
不動産の現況
未完成
入居/引渡
相談
取引
仲介
■学校区:
金岡南小学校
金岡南中学校
■設備:
住宅ローンシミュレーション
ローンシミュレーション条件
頭金
なし
100
200
300
直接入力
万
万
ボーナス払い
(年2回)
なし
10
15
20
直接入力
万
万
借入利率
1.475
1.275
1.075
0.975
直接入力
%
%
借入年数
10
15
20
25
30
35
直接入力
年
年
条件を設定する
この条件を保存する
ローンシミュレーション結果
借り入れ金額
25,500,000
円
月々の返済額
(ボーナス月以外の年10回)
56,242
円
/月
ボーナス月の返済額
(年2回)
156,242
円
/月
年間の返済額
874,904
円
総支払額
(頭金含む)
32,621,640
円
※元利均等返済方式でシミュレーションしています。
※実際のご返済額はその他の条件により計算結果と異なりますので、予めご了承ください。
※シミュレーション結果はご返済の目安としてご利用ください。また、将来のお借り入れを約束するものではありません。
堺市北区金岡町 新築一戸建て
周辺地図
Javascriptを有効にしてください。
堺市北区金岡町 新築一戸建て
のことならお気軽にご相談ください。
株式会社ララホーム
TEL:
0120-072-275
営業時間:9:00~20:00
定休日 :水曜日(祝日の場合は営業いたしております)
メールでのお問い合わせ
お電話の場合は物件番号
< f00171-84544r >
を伝えていただくとスムーズにお応えできます。
2026.2.10
堺市で新築一戸建てをご検討のお客様!ご購入者様からの嬉しいコメントを沢山頂戴しておりますので、
お客様の声!・お客様のご感想!に掲載させて頂いております
➡
お客様の声はこちらをクリック
●まだ買うかもわからない!初めて物件を見るんだけど!とりあえず見てみるだけ~!全然大丈夫です!しつこい押売り営業は致しません!お気軽にお問合せ下さいませ(^^)/
2026.1.12
地震の揺れを吸収する 住友ゴム工業(株)の制震ユニット『ミライエ』を標準装備♪
エムズコートシリーズは『耐震』+『制震』の安心構造です!
➡
『MIRAIE』ミライエって何??
➡
エムズコートシリーズ新築一戸建分譲はこちら
➡
エムズコートシリーズの標準設備仕様・安心構造!
モデルハウスにてハイグレードな標準設備をご覧頂けます!お気軽にご見学下さいませ(^O^)/
2026.1.8
南海高野線 金剛駅エリアで全36区画の大型新築分譲が好評販売中です!
➡
エムズコート金剛(大阪狭山市茱萸木)
●お早い段階ですと、間取り変更や設備の色・外壁の色等も決めて頂けます♪
モデルハウスにてハイグレードな標準設備仕様をご覧頂けますので、お気軽にご見学下さいませ!
2025.12.11
エムズコートシリーズ新築一戸建てのお値打ち!
値下げ物件がでました!
➡
>エムズコート値下げ物件
見てみるだけ~、大歓迎です♪すぐにご案内させて頂けます!現地でのお待合わせや、ご自宅・最寄り駅までお迎えも可能です!お気軽にお問合せください(^^)/
2025.10.31
堺市で新築一戸建てをお探しなら、ララホームでまるごと物件検索!
➡
エムズコートシリーズ新築分譲物件はコチラ
➡
堺市の新築一戸建て新着物件はコチラ
気になる物件がございましたら、いつでもご案内させて頂きます!お気軽にお問合せ下さいませ(^^)/
2025.9.12
堺市で不動産をお探しなら、ララホームでまるごと検索!
お値打ち!値下げ物件が続々登場!
➡
新築一戸建て値下げ物件
➡
中古一戸建て値下げ物件
➡
中古マンション値下げ物件
気になる物件がございましたら、お気軽にお問合せ下さいませ(^O^)/見てみるだけ~、大歓迎です♪喜んで、ご案内させて頂きます!
2025.1.10
堺市で新築一戸建てをお探しなら、ララホームでまるごと物件検索!エムズコートシリーズ新築一戸建てのYouTube動画をアップしました!
➡
ララホームYouTubeちゃんねる
●実際に各物件をご見学して頂けます!すぐにご案内させて頂けますので、お気軽にお問合せ下さいませ(^^)/
2024.12.26
南海高野線 狭山駅徒歩約4分の場所に全3区画の新築一戸建て分譲がでました!
敷地約45坪~49坪!
➡
エムズコート狭山
●お早い段階ですと、間取り変更や設備の色・外壁の色等も決めて頂けます♪
モデルハウスにてハイグレードな標準設備仕様をご案内させて頂けますので、お気軽にご見学して下さいませ!お問合せお待ちしております(^^)/
2024.7.23
堺市中区深井エリアに全17区画の新築一戸建て分譲が登場!
➡
エムズコート深井(東山)
●お早い段階ですと、間取り変更や設備の色・外壁の色等も決めて頂けます♪
モデルハウスにてハイグレードな標準設備仕様をご案内させて頂けますので、お気軽にご見学して下さいませ!お問合せお待ちしております(^^)/
2022.11.11
堺市で不動産をお探しなら、ララホームでまるごと物件検索!
➡
新築一戸建ての新着物件はコチラ
➡
中古一戸建ての新着物件はコチラ
➡
中古マンションの新着物件はコチラ
➡
売土地の新着物件はコチラ
こだわりの条件にチェックをして、物件の絞り込みも簡単にできます♪気になる物件がございましたら、随時ご案内もさせて頂きます!お気軽にお問合せ下さいませ(^^)/
2022.7.24
堺市の不動産情報まるごと検索!
➡
新築一戸建ての新着物件はコチラ
こだわりの条件にチェックをして、物件の絞り込みも簡単にできます♪気になる物件がございましたら、お気軽にお問合せ下さいませ!ご案内もさせて頂きます(^^)宜しくお願い致します!
2022.1.23
堺市で不動産をお探しなら、ララホームでまるごと物件検索!
会員登録頂くと、非掲載物件もご覧頂けます。登録は簡単!お探し条件を指定して、絞り込み検索してみて下さい(^^)
➡
プレミアム会員登録はこちら
気になる物件がございましたら、お気軽にお問合せ下さいませ!随時ご案内もさせて頂きます。見てみるだけ~!でも大歓迎です。お問合せお待ちしておりま~す(^O^)/